機械格柵
2017-05-26 | 來自: 濰坊宇航環保設備有限公司 | 瀏覽次數:0

回轉耙式格柵機
產品簡介回轉式格柵除污機是一種可以連續自動攔截并清除流體中各種形狀雜物的水處理專用設備,可廣泛地應用于城市污水處理。自來水行業、電廠進水口,同時也可以作為紡織、食品加工、造紙、皮革等行業廢水處理工藝中的前級篩分設備,是目前我國最先進的固液篩分設備之一。
2產品工作原理
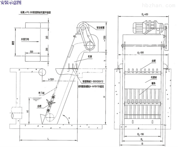
回轉式格柵除污機是由一種獨特的耙齒廠裝配成一組回轉格柵鏈。在電機減速器的驅動下,耙齒鏈進行逆水流方向回轉運動。
耙齒鏈運轉到設備的上部時,由于槽輪和彎軌的導向,使每組耙齒之間產生相對自清運動,絕大部分固體物質靠重力落下。另一部分則依靠清掃器的反向運動把粘在耙齒上的雜物清掃干凈。
按水流方向耙齒鏈類同于格柵,在耙齒鏈軸上裝配的耙齒間隙可以根據使用條件進行選擇。當耙齒把流體中的固態懸浮物分離后可以保證水流暢通流過。整個工作過程是連續的,也可以是間歇的。
3產品特點
該設備的最大優點是自動化程度高、分離效率高、動力消耗小、無噪音、耐腐蝕性能好,在無 人看管的情況下可保證連續穩定工作,設置了過載安全保護裝置,在設備發生故障時,會自動停機,可以避免設備超負荷工作。本設備可以根據用戶需要任意調節設備運行間隔,實現周期性運轉;可以根據格柵前后液位差自動控制;并且有手動控制功能,以方便檢修。用戶可根據不同的工作需要任意選用。
由于該設備結構設計合理,在設備工作時,自身具有很強的自凈能力,不會發生堵塞現象, 所以日常維修工作量很少。
4產品技術參數和選型
1.設備和耙齒規格
設備規格按機寬尺寸分GSLY300-3600型。機寬超過1800mm,則做成并聯機。耙齒柵隙分為1mm、3mm、5mm、10mm、20mm、30mm、40mm、50mm等各種規格,選型由過水量、提升高度、固液分離總量和所分離物質的形狀、顆粒大小來選擇,同時選配不同的材質。
2.設備長短規格
設備標準溝深為1535mm,可根據用戶需要及使用實際情況任意加長。特殊規格另行設計。
5產品規格
| 參數尺寸 | GSLY-300 | GSLY-500 | GSLY-800 | GSLY-1000 | GSLY-1200 |
| 安裝角度 | 60°~75° | 60°~75° | 60°~75° | 60°~75° | 60°~75° |
| 耙齒節距(mm) | 100 | 100 | 100 | 100 | 100 |
| 電機功率(kv) | 0.75 | 0.75 | 1.1 | 1.5 | 2.2 |
| 過水流量(T/h) | 405 | 1125 | 3600 | 4500 | 6300 |
| 液體流量(m/s) | > 0.3 | > 0.5 | > 1 | > 1 | > 1 |
| 有效寬度k1(mm) | 300 | 500 | 800 | 1000 | 12000 |
| 水槽寬度k3(mm) | 550 | 750 | 1050 | 1250 | 1450 |
| 設備總寬k4(mm) | 880 | 1080 | 1380 | 1580 | 1780 |
| 水槽深度H(mm) | 1000~8000 | 1000~8000 | 1000~8000 | 1000~8000 | 1000~8000 |
上一篇: 沒有了 下一篇: 機械格柵













